Pre-Approved Accessory Dwelling Unit Plans

Overview

 

California Assembly Bill 1332, passed on October 11, 2023, requires every city to create a program that offers pre-approved plans to streamline the review and permitting of an accessory dwelling unit (ADU).  

 

This incentive is intended to expedite the permitting process by providing ready-made designs for the applicant’s use. While some site-specific design work is required to complete the submittal, these pre-approved plans aim to help a property owner dramatically reduce pre-construction costs and improve permit approval efficiency. Applications utilizing pre-approved plans require significantly less intensive staff review from the Planning and Building & Safety Divisions for the site-specific design.

 

Pre-approved ADU applications should be filed through the City’s online Permit Center.

 

Note: ADUs other than the two pre-approved ADU plans detailed below are not subject to the expedited review period and will go through the standard building permit review process for ADUs, which is outlined further on the Building & Safety webpage.

 

With any questions about pre-approved ADUs, contact Tom Oliver at the Planning Division at: Toliver@cityoflosalamitos.org or (562) 431-3538 Ext. 303. 

 

Pre-Approved ADU Plans

 

The City of Los Alamitos currently offers two pre-approved ADU plans, including a one-bedroom and a two-bedroom option. Both options are detailed below. Please reference information below to see the image for each pre-approved ADU and further details, including unit description, floor plan, and the architect’s contact information. All drawings are the property of the architect; applicants and property owners wishing to utilize a pre-approved ADU plan should contact the architect directly to obtain the plan before filing their pre-approved ADU application.

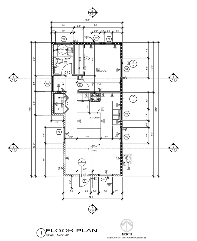
Pre-Approved ADU Plans Design Option A

Details Unit Layout
563 square foot one-story all electric accessory dwelling unit.  A separate permit must be filed for the solar photovoltaic system. 1BD/1BA
PAADU A Renderings
PAADU A Floorplan 2.0

Contact Info

Long Beach Designers
5252 Long Beach Blvd., Long Beach, CA 90805
 
Leoh Sandoval, Owner

 310.749.3195
Leoh@lbdesigners.com
www.LBDesigners.com

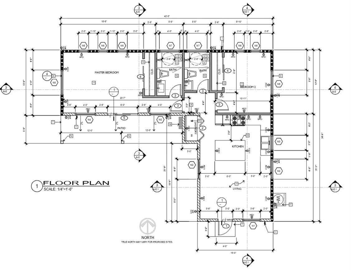
Pre-Approved ADU Design Option B

Details Unit Layout
876 square foot one-story all electric accessory dwelling unit with 132 square foot patio cover.  
A separate permit must be filed for the solar photovoltaic system.
2BD/2BA
PAADU B Renderings
PAADU B Floorplan 2.0

Contact Info

Long Beach Designers

5252 Long Beach Blvd., Long Beach, CA 90805
 
Leoh Sandoval, Owner
310.749.3195
Leoh@lbdesigners.com
www.LBDesigners.com